Sold! 5 Bedrooms, Income Potential, $10K Grant

9035 49th Place, College Park

$469,900 - 5 bedroom, 2 bathrooms, basement kitchenette

This is the kind of property that just works—move-in ready, multiple ways to live or earn, and all the big updates already done. It’s a smart buy whether you’re looking for a home, income, or both.
— Tamara Beauchard

Main Takeaways

5 bedrooms, 2 baths—flexible layout for living or investing
Private-entry basement with kitchenette—income or multi-gen potential
Fresh updates: new paint & carpet (2025)
Major systems done: HVAC (2024), roof (2022)
Replacement windows + egress in basement bedrooms
• Quiet street near UMD with easy I-495 access
• Off-street parking for 3 cars
Fully fenced backyard
Certified lead-free property
Proven rental history—investor-ready
Eligible for $10,000 New Neighbor Grant

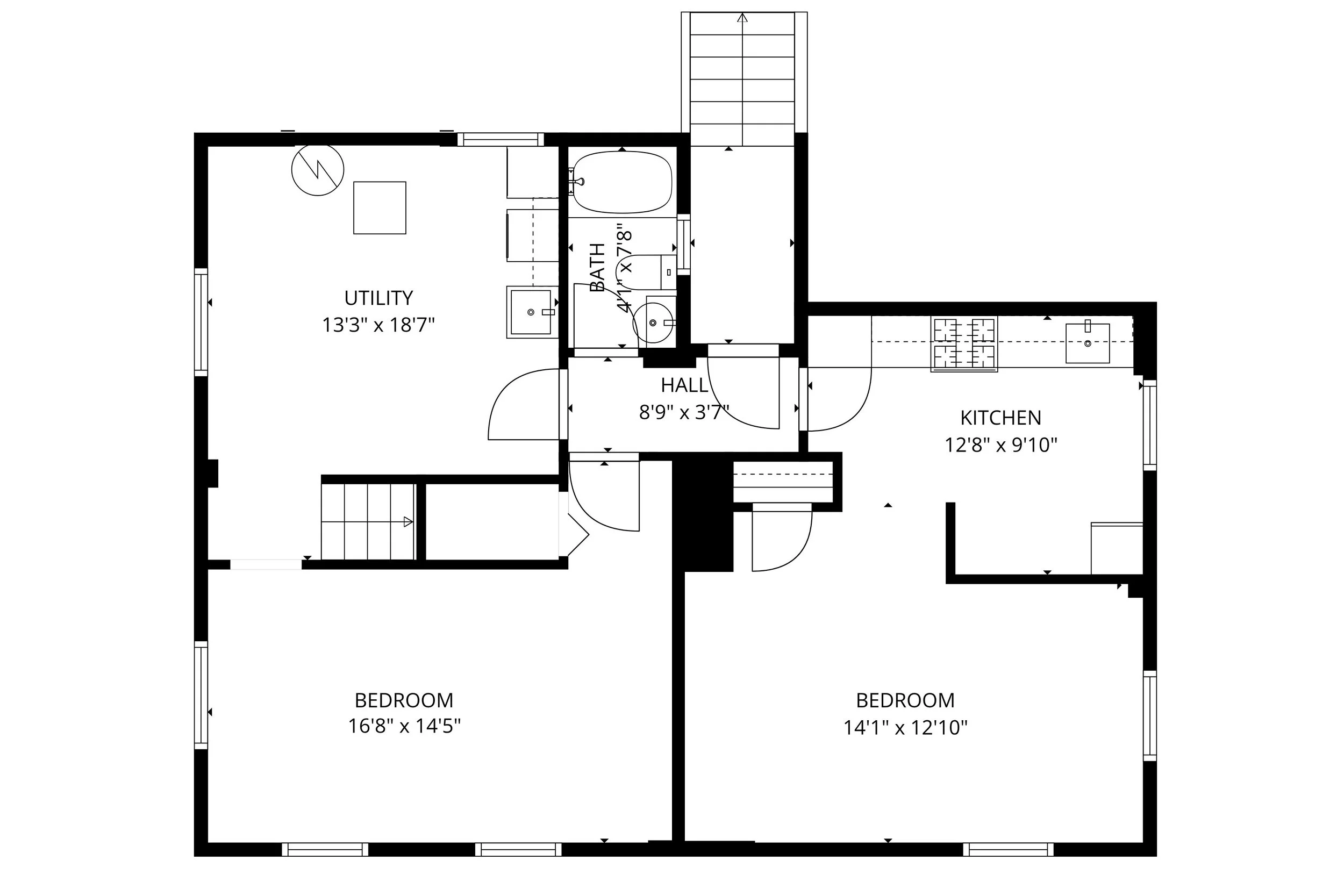
Main Level Floor Plan

Basement Floor Plan

A Layout That Works Hard

The standout here is the private-entry basement with a kitchenette. It’s set up for options: generate rental income, create a separate living space, or design a comfortable work-from-home setup that doesn’t take over the main house.

Upstairs, you’ve got true five-bedroom capacity—room to spread out, host, or maximize rental potential.

The Expensive Stuff? Already Done.

This isn’t a project. The heavy lifting is behind you:

  • 2025: Fresh paint and new carpet

  • 2024: Furnace and A/C

  • 2022: Roof

  • Replacement windows throughout

  • Egress windows in basement bedrooms

That’s real peace of mind—and real savings.

Location That Keeps It Simple

Set on a quiet street with easy access to UMD and I-495, this is a spot that works for commuters, students, and tenants alike. Add in off-street parking for three cars and a fully fenced backyard, and you’ve got everyday practicality covered.

Proven Investment Potential

This isn’t guesswork—it’s a certified lead-free property with a strong history of consistent rental occupancy. If you’re thinking about adding to your portfolio (or starting one), this is the kind of property that makes sense on paper and in practice.

A Bonus for Buyers

If you’re planning to live in the home, there’s an added advantage: eligibility for the $10,000 New Neighbor Grant—a meaningful boost toward ownership.


I'm Tamara Beauchard - I help busy people sell their houses easily.

Too many people have been through the horrible process of selling their homes without understanding what price they can expect and how they are supposed to make their homes look for showings.

The problem isn't the people selling their homes, the problem is that they needed a better guide.

How can I be your guide?

As a top-performing realtor with Re/Max Professionals, I handled nearly $16 million in real estate transactions this past year. I stay on top of the market to ensure that you are confident about the price and the process from our first meeting to the settlement table.

Ready to sell, buy, or downsize?

Contact me today at tbeauchard@gmail.com or 240-413-4141.

Previous
Previous

For Sale! University Park Storybook Colonial with Screened Porches, Attic Suite, and Timeless Charm

Next
Next

Pending! University Park Colonial with Front Porch, Renovated Kitchen, and Flexible Living